Narra II
Narra II
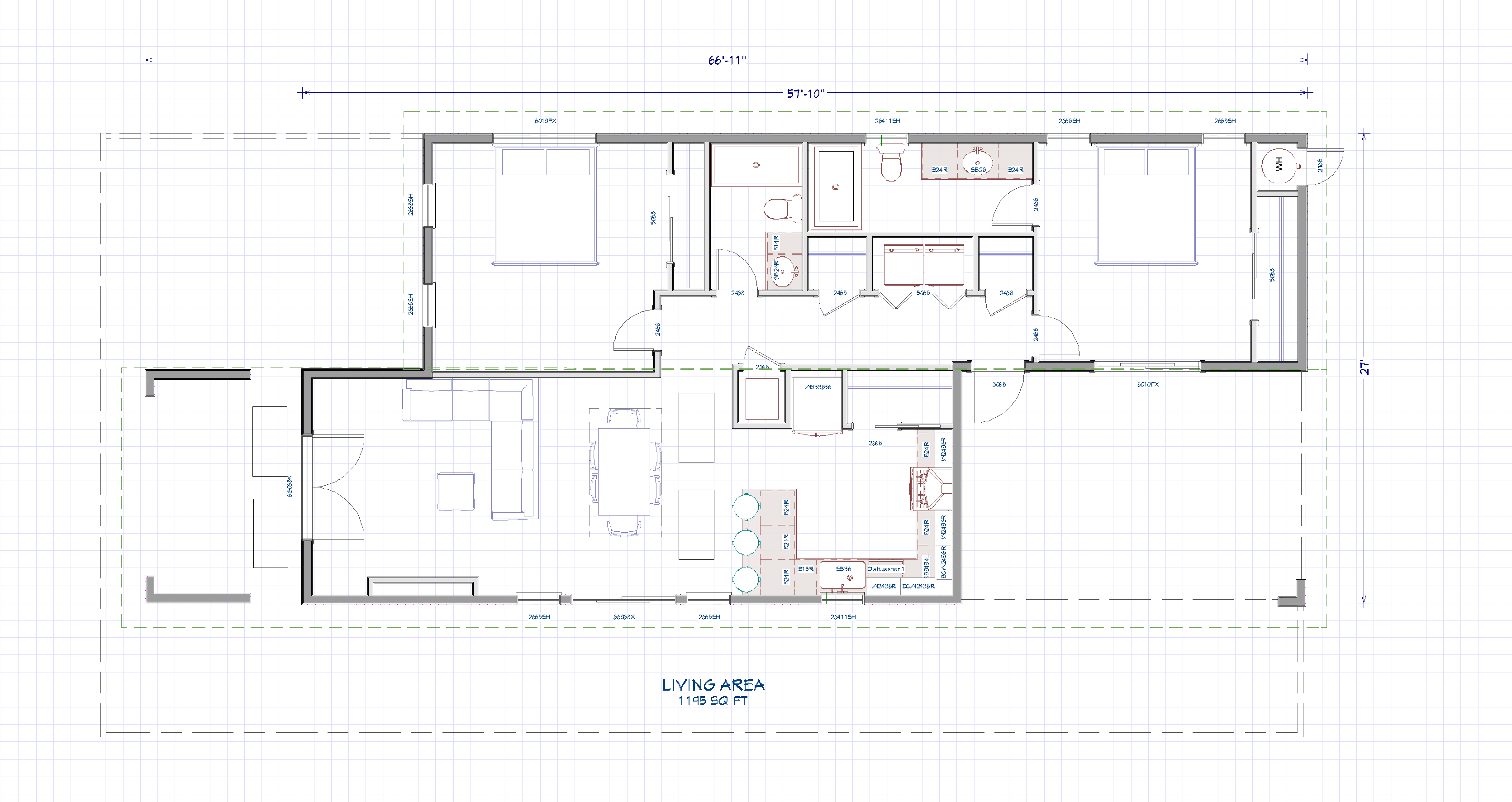
2
Beds
2
Baths
1195 SF.
Dimensions
N/A +SF.
Patio
$257,630
Price
2
Beds
2
Baths
1195 SF.
Dimensions
$257,630
Price

Project Estimate Breakdown

Per ItemCost

Model Home Build Cost * All Catalog Finishes Included (Upgrades Exempt)

Shipping Cost Estimate (Santa Cruz)

Foundation Cost

Home Set Cost

Utility Connection Cost

Interior Close Up Cost

Exterior Close Up Cost


Project Total (Turn-key home on a foundation only)


Price Per SQ.FT.

Disclaimer:

Each property and project are unique. Other onsite/offsite development costs not included in pricing until further review. Other costs may include, but are not limited to:
  • Excavation
  • Septic/sewer
  • Utilities
  • Underground work
  • Decks / Stairs / Handrails
  • Gutters
  • Permits
  • Flat work (sidewalks, driveways, landing pads, patios)

* On-site costs are subject to change.

Choose your finishes

Explore our finishes with the Interactive Design Board Browse multiple options, mix and match your favorites, and bring your dream home to life, one detail at a time.

Let's Get Started

Please Select the form that applies to you by selecting the appropriate tab above.

Contact info

We are based in Santa Cruz County ,
California

Tel: (831) 888-Home
Email: info@joylinehomes.com

Business Hours: 9am - 6pm